Дом по адресу Краснодар, , за 4850000 р.

Адрес Краснодар
Цена 4 850 000 р.
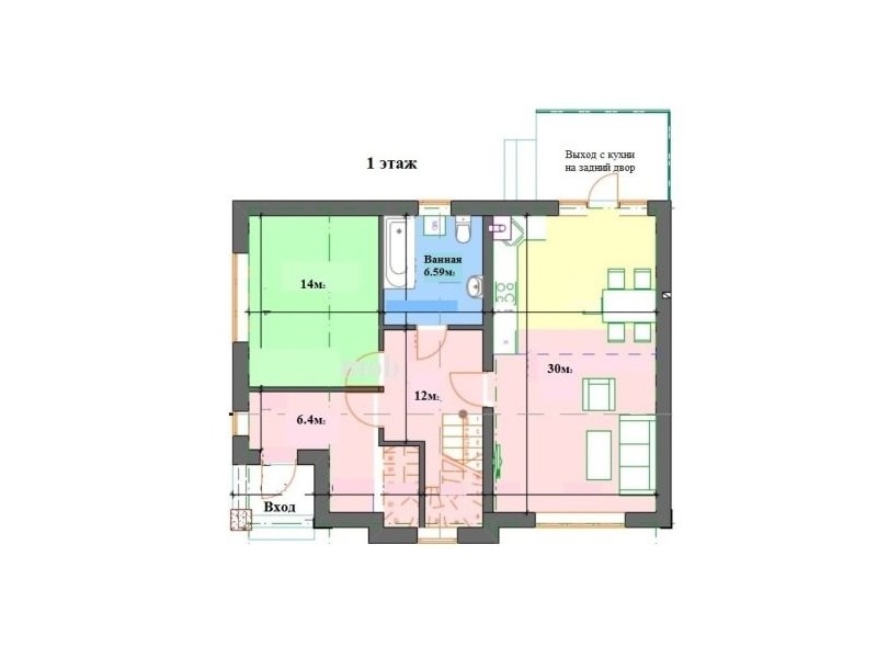
Площадь дома 130 м2, участка 3 м2
Дом монолит-кирпич в предчистовой отделке, высокий запас прочности. В дом заведено всё: газ, свет, вода, канализация. Отопление центральное газовое. Окна м/п немецкие, качественные, крыша м/ч. Все комнаты очень светлые. Во дворе чернозем, залита отмостка, автоматические ворота с пультом, участок огорожен, парковка во дворе вместимостью от двух до четырех машин. Дом и участок в собственности. Категория зем.участка: Земли населенных пунктов- для ИЖС. Категория дома, назначение: жилое. Планировка на фото. Добрые соседи. В шаговой доступности школа 65 (7минут пешком по асфальту), еще ближе находятся продуктовые магазины, аптеки, остановка. Рядом ТРЦ Красная площадь, Баскет холл, Ледовый дворец
Объявление № 8868905
Дата подачи:
22 июля 2017 г. 0:19
Дата обновления:
22 июля 2017 г. 0:19
Просмотров 196 Хотите продать быстрее?

Продавец
Иван
email: info@key-house.net
Показать номер телефона
Пожаловаться
Комментарии:
Добавить